201 North Greensboro Street

Approved Commercial Project

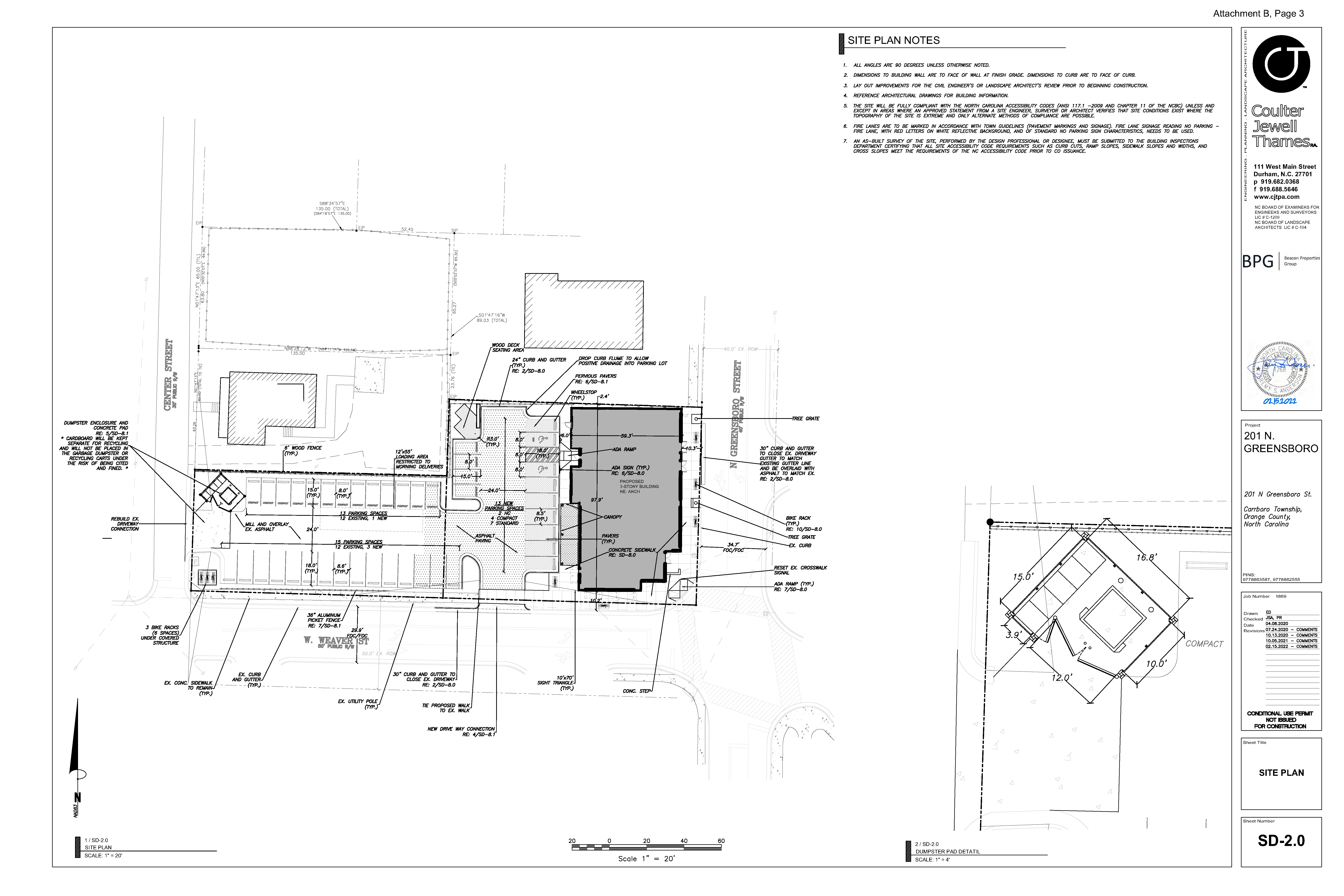
201 North Greensboro Street
  • Applicant: CKE III, LLC
  • Address: 201 N Greensboro St
  • Description: Three story commercial building on .20 acres.
  • Status: SUP-A approved. Construction plans not yet submitted.

For further information on this project, please visit the project page on PIPER by clicking here.